T型三通球閥產品概述
T型三通球閥的球體與閥體的通道形狀一樣呈T字形垂直布置,其球體不但連通了兩個垂直交叉成90度方向的流體通道,而且其中一條的孔道完全打通,可以同時連接三個流道,形狀呈T型。該閥主要用于管路中介質的分流、合流及流向的切換,可以使三個通道相互連通或使其中兩個通道連通。本產品可替代L型三通球閥,當替代L形用于切換介質時,兩側中任一通道可作為公共端,連接其它通道,相對于L型的只有中心的通道可作為公共端,T型在方向上的選擇更方便,更具有靈活多樣性。
T型三通球閥通常采用三閥座密封結構,亦可根據用戶要求設計成四閥座,其不僅能實現對介質流向的切換,也可使三個通道相互連通,同時也可關閉任一通道,使另外兩個流道接通,靈活控制管路中介質的合流或分流。該閥可以減少系統中閥門及管配件的使用數量,節省了空間的同時,簡化了操作,大大降低誤操作的可能性,有效降低成本。本產品有多種驅動方式供用戶選擇,主要有手動、蝸輪蝸桿傳動、氣動、電動,液動等,特適用于液體、氣體、粉塵、漿料及含固體顆粒等介質。
T型三通球閥部件材料
| 序號 | 部件名稱 | 材料名稱 | ||||
| 1 | 閥 體 | WCB | CF8 | CF3 | CF8M | CF3M |
| 2 | 閥 蓋 | WCB | CF8 | CF3 | CF8M | CF3M |
| 3 | 閥 座 | R-PTFE、PTFE、TEFLON、NYLON、PPL、PEEK、DEVLON、不銹鋼+硬質合金 | ||||
| 4 | 球 體 | 2Cr13 | 304 | 304L | 316 | 316L |
| 5 | 閥 桿 | 2Cr13 | 304 | 304L | 316 | 316L |
| 6 | 填 料 | GRAPHITE、R-PTFE、PTFE、TEFLON、PCTFE | ||||
| 7 | 螺 栓 | 35CrMo | 304 | 304 | 316 | 316 |
| 8 | 螺 母 | 30CrMo | 304 | 304 | 316 | 316 |
T型三通球閥技術規范
| 公稱壓力PN(MPa) | 1.6 | 2.5 | 4.0 | 6.3 | 10.0 |
| 殼體試驗壓力(MPa) | 2.4 | 3.75 | 6.0 | 9.45 | 15.0 |
| 高壓液體密封試驗壓力(MPa) | 1.76 | 2.75 | 4.4 | 6.93 | 11.0 |
| 低壓氣體密封試驗壓力(MPa) | 0.4~0.7 | 0.4~0.7 | 0.4~0.7 | 0.4~0.7 | 0.4~0.7 |
| 設計制造 | GB/T 12237、GB/T 21385、API 608、ASME B16.34 | ||||
| 結構長度 | 按本廠標準Q/CB的規定或按訂貨合同要求 | ||||
| 連接法蘭 | JB/T 79、GB/T 9113、HG/T 20592、HG/T 20615、SH/T 3406、ASME B16.5等 | ||||
| 檢驗試驗 | GB/T 26480、JB/T 9092、API 598 | ||||
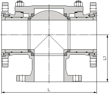
T型三通球閥主要尺寸
| 公稱壓力 PN | 公稱通徑 DN | 結構尺寸/mm | 公稱壓力 PN | 公稱通徑 DN | 結構尺寸/mm | ||
| L | L1 | L | L1 | ||||
| 16 | 25 | 180 | 90 | 16 | 100 | 320 | 160 |
| 32 | 200 | 100 | 125 | 380 | 190 | ||
| 40 | 220 | 110 | 150 | 440 | 220 | ||
| 50 | 240 | 120 | 200 | 550 | 275 | ||
| 65 | 260 | 130 | 250 | 670 | 335 | ||
| 80 | 280 | 140 | 300 | 720 | 425 | ||
| 表中未列出的其他規格尺寸,請咨詢汗越閥門技術部! | |||||||
T型三通球閥結構圖

如果你需訂購我廠其他三通球閥系列產品,咨詢時煩請注明公稱通徑、公稱壓力、閥體和內件材料、工作介質、使用溫度、法蘭標準及密封面型式等。本產品當采用四閥座設計時,可以使同一個閥門既可以控制不同流向,又具有開關閥的功能,并且閥的功能切換簡單,只要通過閥桿的旋轉即可實現。


