抽汽止回閥產品概述
抽汽止回閥是一種適用于電站汽輪機系統,能在機組發生故障時,根據控制系統的指令快速關閉,并可在抽汽管道內介質反流時自動封閉,從而保障汽輪機系統正常工作的側置氣動蓄能旋啟式抽汽止回閥,其在接到關閉信號后具有快速關閉的性能,關閉時間滿足汽輪機系統保護的要求,從全開到全關用時不超過0.5s。該閥流道采用流線形設計,流體阻力小,閥瓣經搖桿與閥軸活動連接,閥瓣繞閥軸旋轉,可以使閥瓣準確的落在閥體密封面上,保證密封面的吻合,閥體密封面傾斜相應角度,以減少閥門關斷時間,減輕沖擊。本產品執行機構與閥門啟閉件動作相互獨立,氣缸故障不影響閥瓣關閉動作,具備防止氣動裝置失效的功能,能在氣缸出現卡阻情況下,仍能夠在介質力作用下關閉,以確保汽輪機系統安然無恙。
抽汽止回閥部件材料
| 序號 | 部件名稱 | 材料名稱 | |||||
| 1 | 閥 體 | WCB | WC1 | WC6 | WC9 | C12A | ZG20CrMoV |
| 2 | 閥 瓣 | WCB | WC1 | WC6 | WC9 | C12A | ZG20CrMoV |
| 3 | 搖 桿 | WCB | WC1 | WC6 | WC9 | C12A | ZG20CrMoV |
| 4 | 閥 軸 | 2Cr13 | 304 | 304 | 304 | 316 | 304 |
| 5 | 閥 蓋 | WCB | WC1 | WC6 | WC9 | C12A | ZG20CrMoV |
| 6 | 填料壓蓋 | WCB | WC1 | WC6 | WC9 | C12A | ZG20CrMoV |
| 7 | 填 料 | GRAPHITE | GRAPHITE | GRAPHITE | GRAPHITE | GRAPHITE | GRAPHITE |
| 8 | 氣 缸 | 20 | 20 | 20 | 20 | 20 | 20 |
| 9 | 彈 簧 | 60Si2Mn | 60Si2Mn | 60Si2Mn | 60Si2Mn | 60Si2Mn | 60Si2Mn |
抽汽止回閥性能規范
| 公稱壓力PN(MPa) | 1.6 | 2.5 | 4.0 | 6.3 | 10.0 | 16.0 |
| 殼體強度試驗壓力(MPa) | 2.4 | 3.75 | 6.0 | 9.45 | 15.0 | 24.0 |
| 液體密封試驗壓力(MPa) | 1.76 | 2.75 | 4.4 | 6.93 | 11.0 | 17.6 |
| 氣體密封試驗壓力(MPa) | 0.5~0.7 | 0.5~0.7 | 0.5~0.7 | 0.5~0.7 | 0.5~0.7 | 0.5~0.7 |
| 設計制造 | JB/T 12002、DL/T 1822、NB/T 47044、ASME B16.34 | |||||
| 結構長度 | GB/T 12221、DL/T 1822、ASME B16.10 | |||||
| 法蘭標準 | JB/T 79、GB/T 9124.1、HG/T 20592、ASME B16.5等 | |||||
| 檢驗試驗 | GB/T 13927、NB/T 47044、API 598 | |||||
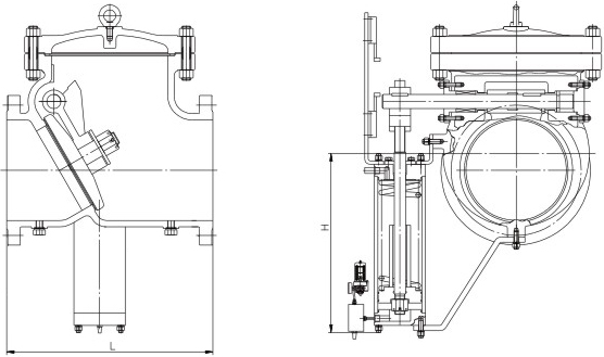
抽汽止回閥主要尺寸
| 公稱壓力 PN | 公稱通徑 DN | 外形尺寸/mm | 公稱壓力 PN | 公稱通徑 DN | 外形尺寸/mm | ||
| L | H | L | H | ||||
| 16 | 80 | 356 | 375 | 25 | 80 | 356 | 375 |
| 100 | 457 | 445 | 100 | 457 | 445 | ||
| 125 | 508 | 485 | 125 | 508 | 485 | ||
| 150 | 559 | 525 | 150 | 559 | 535 | ||
| 200 | 660 | 715 | 200 | 660 | 745 | ||
| 250 | 787 | 975 | 250 | 787 | 1020 | ||
| 以上尺寸僅供參考,表中未列出的其他規格參數,請咨詢汗越閥門技術部! | |||||||
抽汽止回閥結構圖

為了使本產品順利打開和穩定運行,并能夠快速關閉,大口徑的本閥配有重錘,位置可調整,出廠前位置基本調好(見刻線標志),運行前可根據情況稍做調整。如果你需訂購我廠電站閥系列產品,咨詢時煩請說明公稱通徑、公稱壓力、材質、使用介質、工作溫度、法蘭執行標準及密封面形式等。


