保溫V型球閥產品概述
保溫V型球閥是一種帶有V型切口的閥芯,并在閥體外部焊接一層保溫夾套,具有節流特性和流量調節及保溫保冷功能的夾套球閥,其通過夾套兩側的保溫加熱流體入口和出口與外接蒸汽或熱油等管道相連接,以對整個閥體進行流動加熱,從而使閥門保持在合適的溫度,防止易凝固或結晶的介質附著在球體和閥座表面,影響閥門開啟或關閉。該閥閥芯為一側開V形缺口的半球體,并在其表面進行噴焊或堆焊硬質合金,達到耐磨,耐腐蝕,且密封面可輕易剪碎煤渣,礦渣等顆粒介質而不會磨損。本產品由于V型球和閥座之間是無間隙回轉,所以具有很大的剪切力及自清潔性能,尤其適用于易凝固或結晶,含纖維性或有微小固體雜質的懸濁液及固態顆粒狀介質的工況系統控制中。
保溫V型球閥部件材料
| 序號 | 部件名稱 | 材料名稱 | ||||
| 1 | 閥 體 | WCB | CF8 | CF3 | CF8M | CF3M |
| 2 | 閥 座 | 304+HF | 304+HF | 304L+HF | 316+HF | 316L+HF |
| 3 | 球 體 | CF8+HF | CF8+HF | CF3+HF | CF8M+HF | CF3M+HF |
| 4 | 上下閥桿 | 2Cr13 | 304 | 304L | 316 | 316L |
| 5 | 填 料 | GRAPHITE、R-PTFE、PTFE、TEFLON、PCTFE | ||||
| 6 | 填料壓蓋 | WCB | CF8 | CF3 | CF8M | CF3M |
| 7 | 壓 圈 | WCB | CF8 | CF3 | CF8M | CF3M |
| 8 | 下 端 蓋 | WCB | CF8 | CF3 | CF8M | CF3M |
| 9 | 保溫夾套 | Q235B | 304 | 304 | 304 | 304 |
保溫V型球閥技術規范
| 公稱壓力PN(MPa) | 1.6 | 2.5 | 4.0 | 6.3 | 10.0 |
| 殼體試驗壓力(MPa) | 2.4 | 3.75 | 6.0 | 9.45 | 15.0 |
| 高壓液體密封試驗壓力(MPa) | 1.76 | 2.75 | 4.4 | 6.93 | 11.0 |
| 低壓氣體密封試驗壓力(MPa) | 0.4~0.7 | 0.4~0.7 | 0.4~0.7 | 0.4~0.7 | 0.4~0.7 |
| 設計制造 | JB/T 13458、JB/T 13517、GB/T 12237、GB/T 21385、API 608、ASME B16.34 | ||||
| 結構長度 | JB/T 13458、JB/T 13517、GB/T 12221、ASME B16.10 | ||||
| 法蘭標準 | JB/T 79、GB/T 9113、HG/T 20592、HG/T 20615、SH/T 3406、ASME B16.5等 | ||||
| 檢驗試驗 | GB/T 13927、GB/T 26480、JB/T 9092、API 598 | ||||
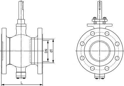
保溫V型球閥主要尺寸
| 公稱壓力 PN | 公稱通徑 DN | 外形尺寸/mm | ||||
| d1 | L | L1 | H | H1 | ||
| 16 | 25 | 38 | 102 | 51 | 81 | 73 |
| 32 | 45 | 102 | 51 | 86 | 78 | |
| 40 | 50 | 114 | 57 | 90 | 80 | |
| 50 | 62 | 124 | 62 | 93 | 90 | |
| 65 | 73 | 145 | 72.5 | 108 | 105 | |
| 80 | 90 | 165 | 82.5 | 123 | 118 | |
| 100 | 115 | 194 | 97 | 138 | 130 | |
| 125 | 134 | 194 | 97 | 148 | 145 | |
| 150 | 164 | 229 | 114.5 | 170 | 170 | |
| 200 | 206 | 243 | 121.5 | 200 | 201 | |
| 250 | 260 | 297 | 148.5 | 240 | 237 | |
| 300 | 316 | 338 | 169 | 286 | 282 | |
| 350 | 372 | 400 | 200 | 330 | 337 | |
| 400 | 420 | 400 | 200 | 367 | 372 | |
| 450 | 470 | 520 | 260 | 422 | 432 | |
| 500 | 516 | 600 | 300 | 490 | 498 | |
| 表中未列出的其他規格尺寸,請咨詢汗越閥門技術部! | ||||||
保溫V型球閥結構圖

如果你需訂購我廠保溫球閥系列產品,咨詢時煩請說明公稱壓力、公稱尺寸、閥體和內件材質、使用介質、工作溫度及驅動方式等,本產品端部連接方式有法蘭和對夾兩種。


