直通籃式過濾器產品概述
直通籃式過濾器是一種利用筒體內裝置的濾籃,對液態及氣態介質中的固體雜質進行過濾,從而使物料滿足工藝設計要求,保證泵、壓縮機、儀表等正常穩定運行的法蘭連接直通平底籃式過濾器。其筒體由主管、接管、法蘭和底部平板組焊而成,進出口在同一根軸線上,上口成45°斜口的濾籃正置于筒內橢圓環形濾網支撐座上,并通過蓋板壓緊固定,當流體從入口流入筒體中后從上方進入濾籃內腔,經濾網過濾后從四周流入籃狀濾筒外壁與筒體內壁之間的空間內,然后經出口流出,其中的固體顆粒則沉積在濾籃內。本產品的核心部件是由濾筒和濾網組成的濾籃,其中濾筒通常采用不銹鋼材質制作,當液體及氣體物料或工藝過程對濾筒材料有特殊要求時,可選用其他材料。
直通籃式過濾器部件材料
| 序號 | 部件名稱 | 材料名稱 | |||||
| 1 | 筒 體 | 20# | 15CrMo | 304 | 304L | 316 | 316L |
| 2 | 接 管 | 20# | 15CrMo | 304 | 304L | 316 | 316L |
| 3 | 支 撐 座 | Q235-B | 15CrMo | 304 | 304L | 316 | 316L |
| 4 | 法 蘭 | A105 | 15CrMo | 304 | 304L | 316 | 316L |
| 5 | 墊 片 | 聚四氟乙烯、金屬環形墊、金屬纏繞墊(帶內外環) | |||||
| 6 | 蓋 板 | Q235-B | 15CrMo | 304 | 304L | 316 | 316L |
| 7 | 平 底 | Q235-B | 15CrMo | 304 | 304L | 316 | 316L |
| 8 | 濾 籃 | 304 | 304 | 304 | 304L | 316 | 316L |
| 9 | 螺 塞 | 304 | 304 | 304 | 304L | 316 | 316L |
直通籃式過濾器性能規范
| 公稱壓力PN(MPa) | 1.0 | 1.6 | 2.5 | 4.0 | 2.0 | 5.0 |
| 殼體試驗壓力(MPa) | 1.5 | 2.4 | 3.75 | 6.0 | 3.0 | 7.5 |
| 氣密性試驗壓力(MPa) | 1.0 | 1.6 | 2.5 | 4.0 | 2.0 | 5.0 |
| 設計制造 | SH/T 3411-2017、HG/T 21637-2021、JB/T 7538-2016 | |||||
| 法蘭標準 | JB/T 81~82、GB/T 9115~9119、HG/T 20592~20615、SH/T 3406、ASME B16.5等 | |||||
| 檢驗驗收 | SH/T 3411-2017、HG/T 21637-2021、JB/T 7538-2016 | |||||
| 濾網規格 | 2目 ~ 600目 | |||||
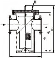
直通籃式過濾器主要尺寸
| 公稱壓力 PN | 公稱通徑 DN | 結構尺寸/mm | 排放口 B | ||||
| D1 | L | H1 | H2 | H | |||
| 16 | 25 | 89 | 220 | 160 | 260 | 480 | R ? |
| 32 | 89 | 220 | 165 | 270 | 495 | R ? | |
| 40 | 114 | 280 | 180 | 300 | 550 | R ? | |
| 50 | 114 | 280 | 180 | 300 | 550 | R ? | |
| 65 | 140 | 330 | 220 | 350 | 650 | R ? | |
| 80 | 168 | 340 | 260 | 400 | 740 | R ? | |
| 100 | 219 | 420 | 310 | 470 | 880 | R ? | |
| 150 | 273 | 500 | 430 | 620 | 1175 | R ? | |
| 200 | 325 | 560 | 530 | 780 | 1495 | R ? | |
| 250 | 426 | 660 | 640 | 930 | 1810 | R ? | |
| 300 | 478 | 750 | 840 | 1200 | 2310 | R ? | |
| 表中未列出的其他規格參數,請咨詢汗越閥門技術部! | |||||||
直通籃式過濾器結構圖



